Mehrfamilienhaus Fingerhut Haus

Modernes Mehrfamilienhaus – flexibel, großzügig und durchdacht geplant

Dieses Mehrfamilienhaus vereint modernes Wohnen mit klar strukturierter Architektur. Auf einer Gesamtwohnfläche von ca. 560 m² verteilen sich fünf Wohneinheiten, die vielseitige Lebensentwürfe ermöglichen – egal, ob Sie als Familie, als Paar, als Single oder im Mehrgenerationenmodell leben möchten.

 Mehrfamilienhaus Fingerhut Haus Fingerhut Haus
Mehrfamilienhaus Fingerhut Haus, Fingerhut Haus

Hinweis:
Abbildungen können Sonderausstattung enthalten.

Merkmale Mehrfamilienhaus Fingerhut Haus
Anbieter Fingerhut Haus GmbH & Co. KG
Gebäudetyp Stadthaus, Landhaus, Naturhaus
Bauweise Holztafelbau
Förderung Effizienzhaus 40, Effizienzhaus 55
Energiestandard Passivhaus, Niedrigenergiehaus, Effizienzhaus
Verwendung Mehrfamilienhaus, Mehrgenerationenhaus
Fläche/Größe 560 m²
Ausbaustufe Schlüsselfertig
Dachart Flachdach
Besonderheiten
  • Individuelle Planung
  • Großzügige Raumaufteilung
  • Dachterrasse der Wohnung im Obergeschoss
  • Mit Terrasse oder Balkon

 

 

 

In die Merkliste legen

 

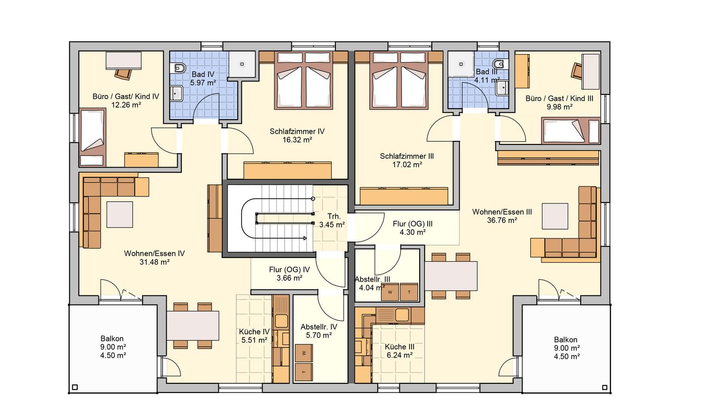
Durchdachte Grundrisse mit viel Tageslicht

Das Gebäude mit den Außenmaßen 18,50 m x 12,00 m erstreckt sich über drei Geschosse und bietet durchdachte Grundrisse mit viel Tageslicht. Jede Wohneinheit verfügt über eine Terrasse oder einen Balkon, sodass sich der Wohnraum harmonisch in den Außenbereich fortsetzt. Ein besonderes Highlight ist die großzügige Dachterrasse der Wohnung im Obergeschoss, die zusätzlichen Raum zum Entspannen und Genießen bietet.

Wohnungsgrößen im Überblick:

  • EG – Wohnung 1: 87,96 m²
  • EG – Wohnung 2: 69,79 m²
  • OG – Wohnung 3: 91,45 m²
  • OG – Wohnung 4: 89,90 m²
  • OG – Wohnung 5: 189,38 m²
  • Gemeinschaftlich genutzte Fläche: 31,34 m²

Mit seinem modernen Flachdach und der klaren Formensprache steht das Gebäude für zeitgemäße Architektur. Großzügige Raumaufteilungen und funktionale Wohnkonzepte bieten Komfort und ein Höchstmaß an Lebensqualität.
Ganz im Sinne unseres Planungsansatzes lässt sich auch dieses Mehrfamilienhaus individuell an Ihre Wünsche anpassen – ob klassisches Doppelhaus, eleganter Stadtvilla-Charakter oder moderne Bauhauslinie. Wir schaffen Wohnraum, der Ihren Ideen Raum gibt, Realität zu werden.

Fingerhut Haus

Auf individuelles Bauen vertrauen

Fingerhut Haus aus Neunkhausen im Westerwald blickt auf 120 Jahre Bautradition zurück. Seit Jahrzehnten werden Häuser auf Kundenwünsche hin entworfen und maßgeschneidert angefertigt. So individuell wie Ihr Fingerabdruck entwickelt Fingerhut aus Ihren Wünschen Ihr Zuhause. Mit dem Fundament aus langjähriger Erfahrung, Expertise und breitem Know-how geht das Fertighausunternehmen dabei engagiert für Sie ans Werk.

Zum Anbieter